Contatti rapidi
Cerca

Faenza - Via Ponte Romano 28

Demolizione e ricostruzione di un edificio posto in Via Ponte Romano 28 a Faenza per la realizzazione di n. 6 alloggi di ERP.

INTERVENTO
L’intervento di FAENZA Via Ponte Romano 28  si colloca all’interno del Programma Regionale  di recupero e riqualificazione di alloggi di Edilizia Residenziale Pubblica usufruendo di contributo di cui al D.I. 16/3/2015.

PROGETTO
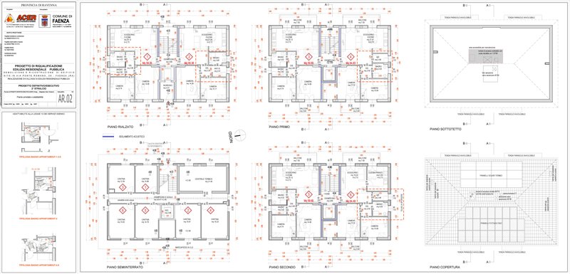
Il progetto attua il recupero e la riqualificazione di un edificio residenziale inserito in un complesso urbanistico sorto nel dopoguerra e comprendente altri sette fabbricati di analoga tipologia.
L’edificio a pianta rettangolare, presentava una scala centrale di distribuzione e collegamento con il piano seminterrato destinato a zona condominiale di servizio (cantine e lavanderia) ai piani rialzato, primo e secondo dove si sviluppavano complessivamente nove alloggi ERP di dimensioni molto ridotte, inferiori agli standard abitativi.
 Fabbricato e alloggi non erano accessibili, né visitabili da parte di portatori di handicap motori per la presenza di barriere architettoniche. L’impianto distributivo degli alloggi si presentava non funzionale, obsoleto e privo delle dotazioni igienico-sanitarie minime con uno stato manutentivo assai scadente.
L’analisi delle caratteristiche intrinseche del fabbricato e lo studio delle alternative progettuali, ha determinato la scelta di non procedere ad una ristrutturazione totale con mantenimento della struttura originaria, ma ad un intervento più radicale che prevedesse demolizione e ricostruzione.
La costruzione di un edificio residenziale con i requisiti di ‘nuova costruzione’ è avvenuta nel rispetto dell’area di sedime del fabbricato originario e con la ricostruzione fedele dei fronti dell’edificio come previsto dalle scelte urbanistiche del Comune.  
Il nuovo edificio mantiene la distribuzione centrale con doppio ingresso al vano scala su un lato e all’impianto  di ascensore e rende accessibili/ visitabili n.6 alloggi di dimensioni compresa fra 59,00-64,00 mq. di SU oltre a balcone e cantina. Ogni alloggio ha uno spazio di soggiorno-angolo cottura ed uno spazio notte con due camere da letto, un bagno completo ed un locale di servizio aggiuntivo ad uso
lavanderia oltre ad un vano uso cantina al piano seminterrato.
Il PROGETTO definitivo-esecutivo è stato redatto dal Servizio Lavori- Energia di Acer Ravenna e approvato dal Comune di Faenza con Delibera di C.C.n.147  del 30/8/2017.
La GARA D’APPALTO sull’importo a base d’asta di €.737.542,77, è stata esperita dal Comune di Faenza ed ha portato all’aggiudicazione all’impresa  appaltatrice EDILIZIA 3M srl. – Via Della Vecchia Fornace 50 - 06134 PERUGIA con il ribasso del 24,566%.

ESECUZIONE
La consegna dei lavori è avvenuta in data 18/7/2018.
I lavori si sono svolti regolarmente secondo programmazione e con la redazione di una perizia di variante che ha incrementato l’importo contrattuale e ha determinato un prolungamento dei tempi contrattuali.
L’impresa ha consentito anche l’intervento pittorico sulla facciata di un gruppo di writers dell’Associazione ‘Noi Giovani’ per la realizzazione del progetto vincitore del concorso URBAN DESIGN promosso dal Liceo Torricelli- Ballardini di Faenza  realizzando un murales molto apprezzato dalla cittadinanza.
I lavori sono ultimati e a breve si potrà procedere con l’assegnazione degli alloggi.
PRIMA
PRIMA
Informativa

Noi e terze parti selezionate (come ad esempio Google, Facebook, LinkedIn, ecc.) utilizziamo cookie o tecnologie simili per finalità tecniche e, con il tuo consenso, anche per altre finalità come ad esempio per mostrati annunci personalizzati e non personalizzati più utili per te, come specificato nella .
Chiudendo questo banner con la crocetta o cliccando su "Rifiuta", verranno utilizzati solamente cookie tecnici. Se vuoi selezionare i cookie da installare, clicca su "Personalizza". Se preferisci, puoi acconsentire all'utilizzo di tutti i cookie, anche diversi da quelli tecnici, cliccando su "Accetta tutti". In qualsiasi momento potrai modificare la scelta effettuata.